Boardinghouse
2026
Berlin-Gesundbrunnen
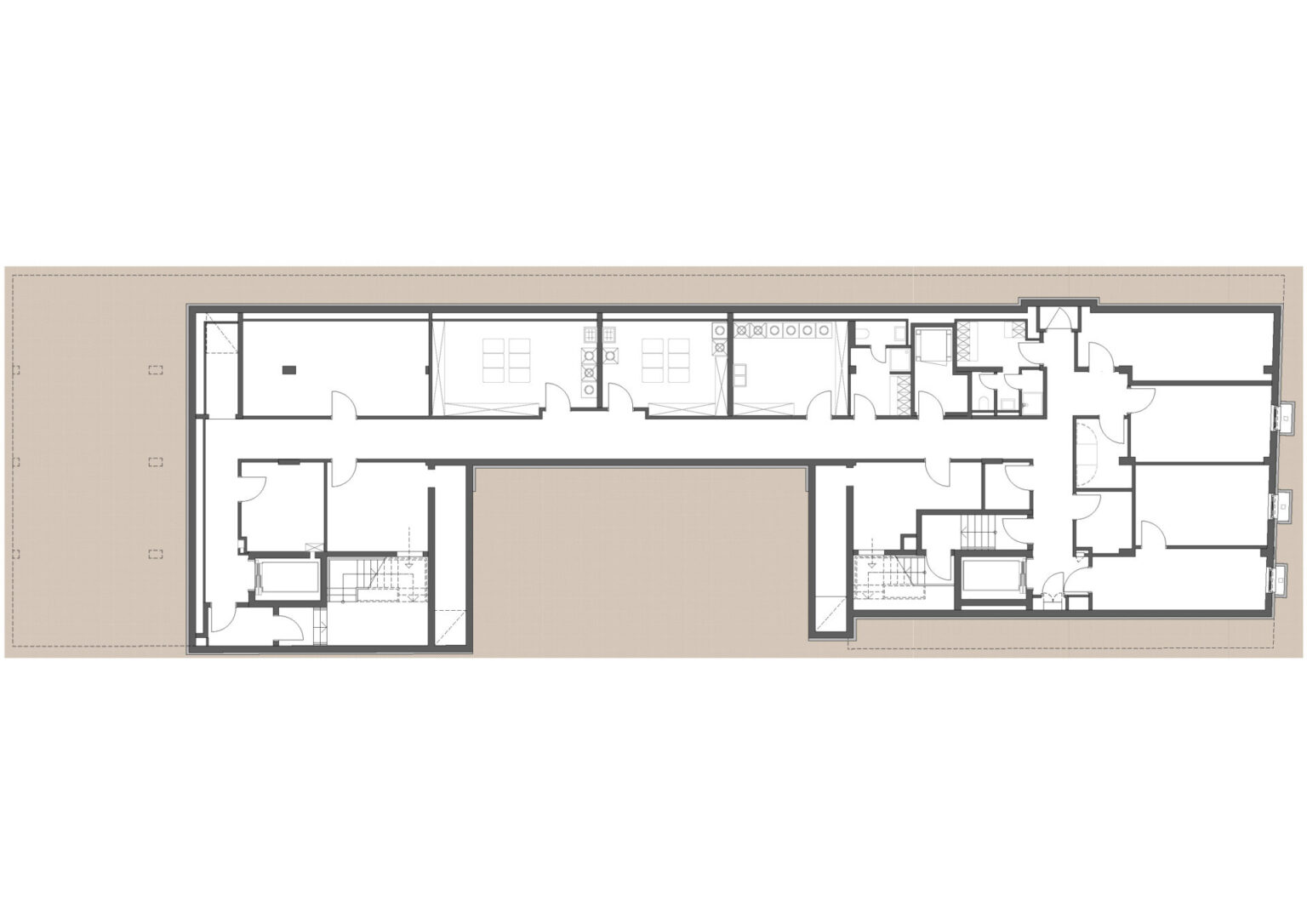
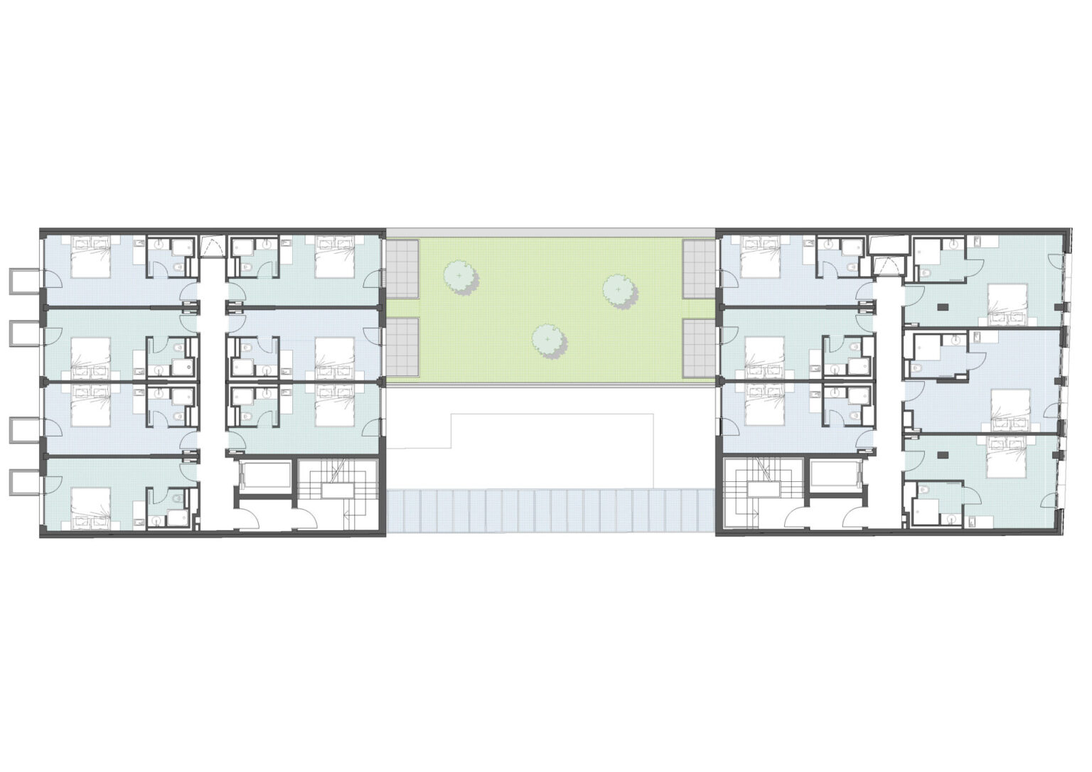
Im Berliner Ortsteil Gesundbrunnen entsteht auf einem schmalen, langgestreckten Grundstück ein Boardinghouse mit 104 Zimmern und einer Gewerbeeinheit. Das 8-geschossige, unterkellerte Gebäude knüpft mit seinen 2 Baukörpern an den traditionellen Berliner Bautypus mit Vorder- und Hinterhaus an. Die Fassaden zu den Höfen sind als Lochfassaden schlicht und einfach gehalten und werden mit Balkonen aufgelockert. Entlang der Ackerstraße erhält die Fassade eine 3-Teilung. Der 2-geschossige Sockel mit einer Verkleidung aus Metallpaneelen trägt einen 4-geschossigen Baukörper mit horizontalen Bändern, neben den Fenstern ‚hängen‘ gardinenähnliche Fassadenelemente. Den Gebäudeabschluss bilden die beiden letzten, verputzten Geschosse, die leicht zurückversetzt sind.
- Adresse
Ackerstraße 89, 13355 Berlin
- Zimmeranzahl
- 104
- BGF
- 4.440 qm
- Energiestandard
- Effizienzhaus 55
- Leistungsphasen
- 2 - 8
- Gewerbefläche EG
- 89 qm